南通“广安杯”建筑设计竞赛方案
一、项目名称
赛项名称:南通“广安杯”建筑设计竞赛
二、大赛目的
为加快推进公司高职公司产品改革,不断提高员工实践能力和创新能力,检验员工创新、设计能力,适应建筑设计单位生产一线技术岗位的要求,实现“以赛促学,以赛促教”的目的。
三、大赛方式与内容
1、参赛对象及竞赛方式
参赛对象为本公司建筑设计专业在籍全日制员工,性别、年龄不限;竞赛采取个人比赛方式。
2、竞赛内容
建筑的设计及建造过程总是在一定条件下展开的,并经历着从抽象到具体,抑或从具体到抽象,乃至不断反复的过程。所谓“一定的条件”,可能关乎具体的气候、环境、地形,等等。所谓“具体”和“抽象”,可能关乎光线、气味、质感、材料、构造、建造、思考、方法、几何、关系、图形、功能,等等。
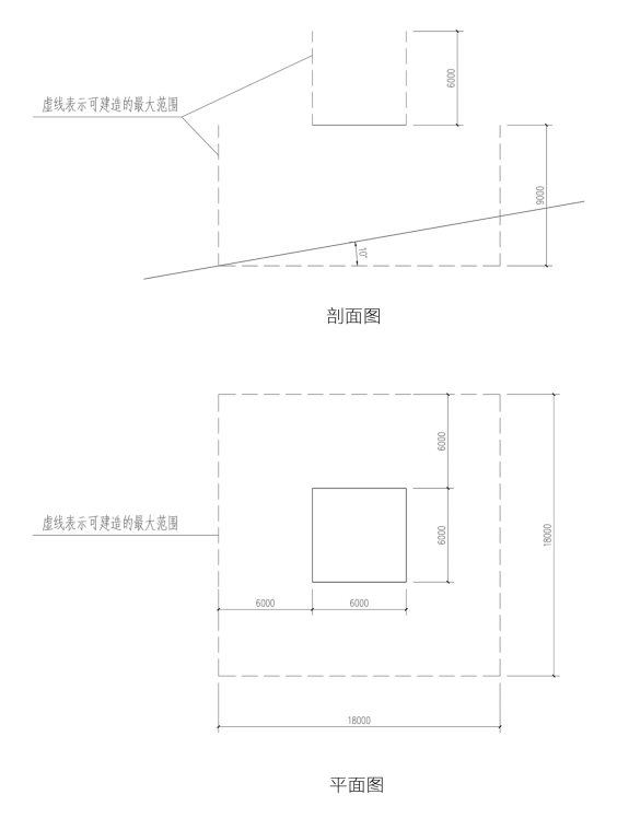
本次竞赛为设计者提供了一个略具抽象的基地,在绵延坡度为10度、18m×18m投影见方的场地正中上方,还有一块6m×6m见方的空中水平基地,建筑的可建造范围将被限定(任意小于但不超过)在如图虚线所示的两个立方体范围内,上部立方体为6(长)×6(宽)×6(高)m,下部立方体为18(长)×18(宽)×9(高)m。场地朝向自定,气候可根据参赛者家乡所在地的具体气候或假想为寒冷的、炎热的、多雨的、干旱的、多风的、阳光充足的......,环境可以是丛林、草地、沙滩......,功能安排在上部立方体范围内须为居住,下部立方体范围内功能不限(居住或其他),但上下功能需能并置成立。上述朝向、气候、环境不限但必须自我设定。
说明:方案可以是一个建筑师之家,可以是一个乡村希望小学单元体,可以是一个小型客栈,亦或者是一个宠物救护站,评委会期待看到每一位参赛者在设定条件下的充满想象力的设计。

3、竞赛时间
(1)2017年9月-2017年10月,截止时间2017年10月27日。
4、竞赛成果文件
(1)方案设计说明,总平面、平面、立面、剖面设计电子档;
(2)方案透视效果图或模型照片(JPG格式);
(3)展板一块,以上内容均须排版在A1(尺寸大小600x840mm)展板上,
竖向排版;
(4)在图纸背面必须写上所有参赛者的姓名、班级、学号及联系电话,
如有指导教师,请写上教师姓名、联系电话。
5、评奖
由建筑设计与装饰公司相关专业老师与南通广安建筑安装工程有限公司
专家组成评委会进行评奖。
6、奖项设置
一等奖:2名奖金和奖状
二等奖:4名奖金和奖状
三等奖:6名奖金和奖状
7、其他
1. 参赛作品不得侵害他人的著作权,不得使用复制、拷贝自其他杂志、书籍、网络的图片内容,如有发现,一律取消参赛资格及奖项。
2. 提交的参赛图纸归公司所有。
3. 参赛作品的著作权归作者本人,但参赛作品的出版权归公司所有。
8、赛项联系人
联系人:但功水老师
建筑设计与装饰公司
2017年9月15号


